Zpět Zpět na výpis nemovitostí

Prodej bytu 1+1 42 m², Na mokřině, Praha-Žižkov

Na mokřině, Praha Zobrazit na mapě Zobrazit na mapě

Stav

Volný

Typ

1+1

Obytná plocha

42 m2

Stav objektu

Po rekonstrukci

Stavba

Cihlová

Vlastnictví

Osobní

6 394 396 Kč

Pohlídejte si cenu této nemovitosti Pohlídejte si cenu této nemovitosti

reo_watchdog_modal_header_title

bell

Pohlídejte si změny u této nemovitosti

Dáme vám vědět, ať už se změní cena nebo stav nemovitosti.

bell

O vaše data je u nás postaráno. Přečtěte si naše podmínky pro ochranu os. údajů.

Kalkulačka financování Kalkulačka financování

Spočítejte si, na kolik vás vyjde hypotéka

Spočítejte si, na kolik vás vyjde hypotéka

Spočítejte si, na kolik vás vyjde hypotéka

Kalkulačka je skvělý start pro vaše finanční plánování a pevný základ pro podrobnější diskusi s našimi finančními poradci.

Více o této nemovitosti

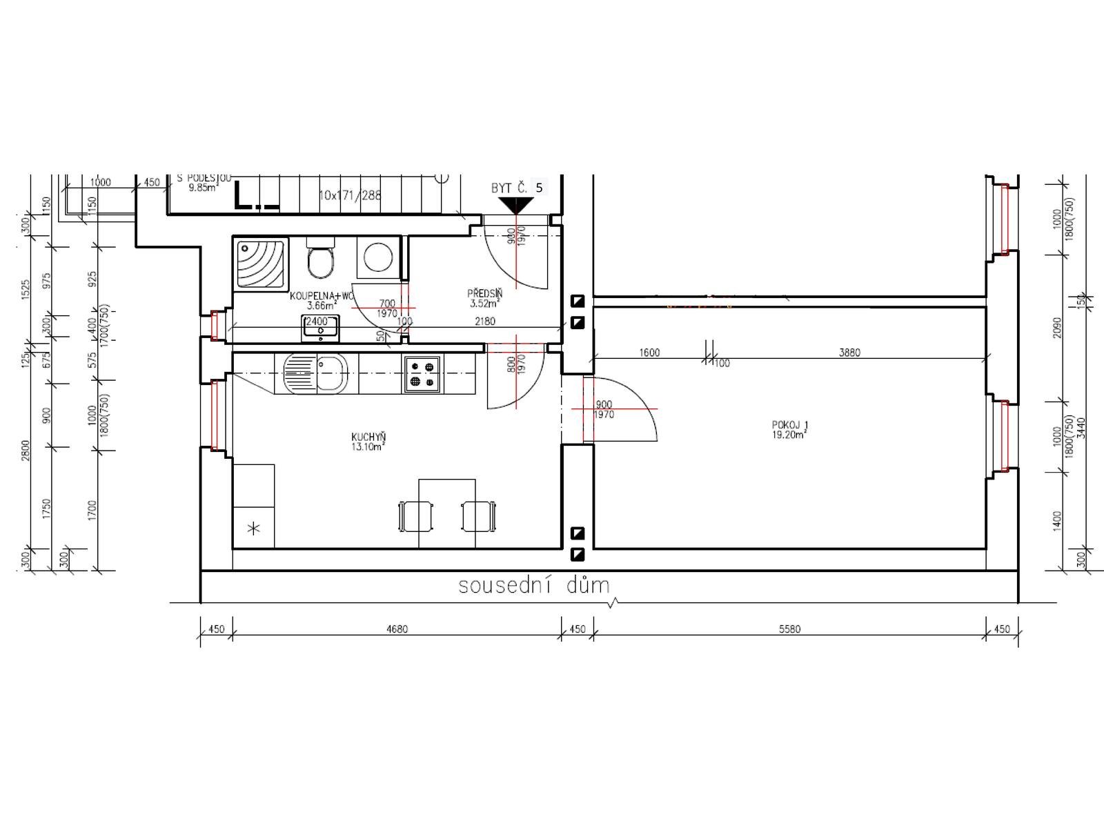
V exkluzivním zastoupení majitele vám nabízíme ke koupi krásně zrekonstruovaný malometrážní byt o dispozici 1+1 v projektu „Rezidence Jarov“ na Praze 3, v kvalitě novostavby.

Byt má podlahovou plochu 41,7 m2 a celkovou užitnou plochu 39,5 m2.
Skládá se z pokoje (19,2 m2), obytné kuchyně (13,1 m2), předsíně (3,52 m2) a koupelny se sprchovým koutem a toaletou (3,66 m2).

Byt je umístěn ve 2. nadzemním podlaží (tj. v 1. patře) kompletně přebudovaného 3 podlažního domu v ulici Na Mokřině, v klidné rezidenční části pražského Jarova.

V pokoji a v kuchyni je položena vinylová podlaha, která má velice příjemné tepelně a zvukově izolační vlastnosti. V předsíni, WC a koupelně je na podlaze položena vkusná dlažba.
Ohřev teplé vody pro koupelnu, kuchyni a topení je zajištěno úsporným elektrokotlem se zásobníkem teplé vody.
Okna jsou úplně nová plastová s izolačním trojsklem.

Rádi vám zajistíme komplexní zařízení bytové jednotky kuchyňskou linkou, nábytkem a zařizovacími předměty od našich partnerů Bonami a SIKO za velice výhodných podmínek v rámci projektu Rezidence Jarov, a to včetně služeb bytového designéra.

Myslím si, že pražský Jarov není třeba nijak zvlášť představovat. Je to klidné a příjemné místo k bydlení, s plnou občanskou vybaveností pro všechny věkové kategorie obyvatel.

Pokud Vás nabídka oslovila, neváhejte mě kontaktovat pro bližší informace a osobní prohlídku nemovitosti. V případě potřeby Vám rád pomohu s vyřešením financování jejího pořízení i s dalšími následnými záležitostmi.

Prodávající si vyhrazuje právo zvolit kupujícího na základě jím zvolených kritérií a požadavků.

Pouze u nás vám zajistíme moderní financování až na 30 let, bez ohledu na věk a prokazování příjmů, či nutnosti předkládat daňové přiznání (u podnikatelů). Zeptejte se nás a bydlete chytře! Pro komunikaci uvádějte evidenční číslo zakázky N110366.

Lokalita

Obec

Ulice

Na mokřině

Informace o nemovitosti

Stav

Volný

Typ smlouvy

Prodej

Typ nemovitosti

Byt

Další informace

Typ

1+1

Obytná plocha

42 m2

Stav objektu

Po rekonstrukci

Stavba

Cihlová

Vlastnictví

Osobní

Energetická náročnost budovy

G - Mimořádně nehospodárná

Navigovat k nemovitosti Navigovat k nemovitosti

Máte zájem o tuto nemovitost?

Kontaktujte mě a domluvme se na prohlídce

Dejte nám vědět, s čím vám můžeme pomoct

Osobně s vámi projdeme každý detail

Preferovaný den prohlídky

Preferovaný čas prohlídky

Nejpozději do 24 hodin se ozveme nazpátek.

O vaše data je u nás postaráno. Přečtěte si naše podmínky pro ochranu os. údajů.

Děkujeme za váš zájem

Vaše informace jsme přijali a brzy se vám ozveme.

Váš požadavek byl úspěšně odeslán

Dejte nám vědět, s čím vám můžeme pomoct

Osobně s vámi projdeme každý detail

Podobné nemovitosti v naší nabídce

Mohlo by vás také zaujmout

Volný
Detail nemovitosti

Prodej bytu 3+1 97 m², Palackého náměstí, Praha-Nové Město

Ulice Palackého náměstí, Praha

13 940 000 Kč
Volný
Detail nemovitosti

Prodej bytu 3+1 97 m², Palackého náměstí, Praha-Nové Město

Ulice Palackého náměstí, Praha

13 490 000 Kč
Prodáno
Detail nemovitosti

Prodej bytu 2+kk 42 m², Praha

Ulice Praha

6 490 000 Kč
Prodáno
Detail nemovitosti

Prodej bytu 1+kk 18 m², Praha

Ulice Praha

3 772 000 Kč
Prodáno
Detail nemovitosti

Prodej bytu 1+1 91 m², Na mokřině, Praha-Žižkov

Ulice Na mokřině, Praha

7 800 000 Kč
Volný
Detail nemovitosti

Prodej bytu 2+kk 48 m², Velehradská, Praha-Vinohrady

Ulice Velehradská, Praha

7 990 000 Kč
Volný
Detail nemovitosti

Prodej bytu 1+1 36 m², U Kublova, Praha-Podolí

Ulice U Kublova, Praha

5 600 000 Kč
Prodáno
Detail nemovitosti

Prodej bytu 1+1 87 m², Na mokřině, Praha-Žižkov

Ulice Na mokřině, Praha

7 800 000 Kč
Prodáno
Detail nemovitosti

Prodej bytu 1+1 43 m², Praha

Ulice Praha

6 577 093 Kč
Volný
Detail nemovitosti
Prodáno
Detail nemovitosti

Prodej bytu 1+kk 43 m², Praha

Ulice Praha

5 737 500 Kč
Prodáno
Detail nemovitosti

Prodej bytu 1+kk 25 m², Praha

Ulice Praha

3 909 300 Kč
Prodáno
Detail nemovitosti
Volný
Detail nemovitosti

Prodej bytu 2+kk 43 m², Velehradská, Praha-Vinohrady

Ulice Velehradská, Praha

9 297 000 Kč
Volný
Detail nemovitosti

Prodej bytu 1+kk 33 m², Velehradská, Praha-Vinohrady

Ulice Velehradská, Praha

6 848 000 Kč
Volný
Detail nemovitosti
Prodáno
Detail nemovitosti
Prodáno
Detail nemovitosti

Prodej bytu 2+kk 87 m², Na mokřině, Praha-Žižkov

Ulice Na mokřině, Praha

7 800 000 Kč
Volný
Detail nemovitosti

Prodej bytu 1+kk 39 m², U Kublova, Praha-Podolí

Ulice U Kublova, Praha

5 900 000 Kč
Volný
Detail nemovitosti

Prodej bytu 1+1 43 m², Palackého náměstí, Praha-Nové Město

Ulice Palackého náměstí, Praha

8 600 000 Kč