Zpět Zpět na výpis nemovitostí

Prodej bytu 2+kk 60 m², Ctiradova, Praha-Nusle

Ctiradova, Praha Zobrazit na mapě Zobrazit na mapě

Stav

Volný

Typ

2+kk

Obytná plocha

60 m2

Stav objektu

Dobrý

Stavba

Cihlová

Vlastnictví

Osobní

5 790 000 Kč

Pohlídejte si cenu této nemovitosti Pohlídejte si cenu této nemovitosti

reo_watchdog_modal_header_title

bell

Pohlídejte si změny u této nemovitosti

Dáme vám vědět, ať už se změní cena nebo stav nemovitosti.

bell

O vaše data je u nás postaráno. Přečtěte si naše podmínky pro ochranu os. údajů.

Kalkulačka financování Kalkulačka financování

Spočítejte si, na kolik vás vyjde hypotéka

Spočítejte si, na kolik vás vyjde hypotéka

Spočítejte si, na kolik vás vyjde hypotéka

Kalkulačka je skvělý start pro vaše finanční plánování a pevný základ pro podrobnější diskusi s našimi finančními poradci.

Více o této nemovitosti

Vážení klienti, ve výhradním zastoupení, si vám dovolujeme nabídnout jedinečnou příležitost získat útulný byt 2+KK v Ctiradově ulici, který snoubí klid a komfort v jedné z nejžádanějších lokalit Prahy. Ideální jako investice k uložení peněz v dnešní nelehké době.

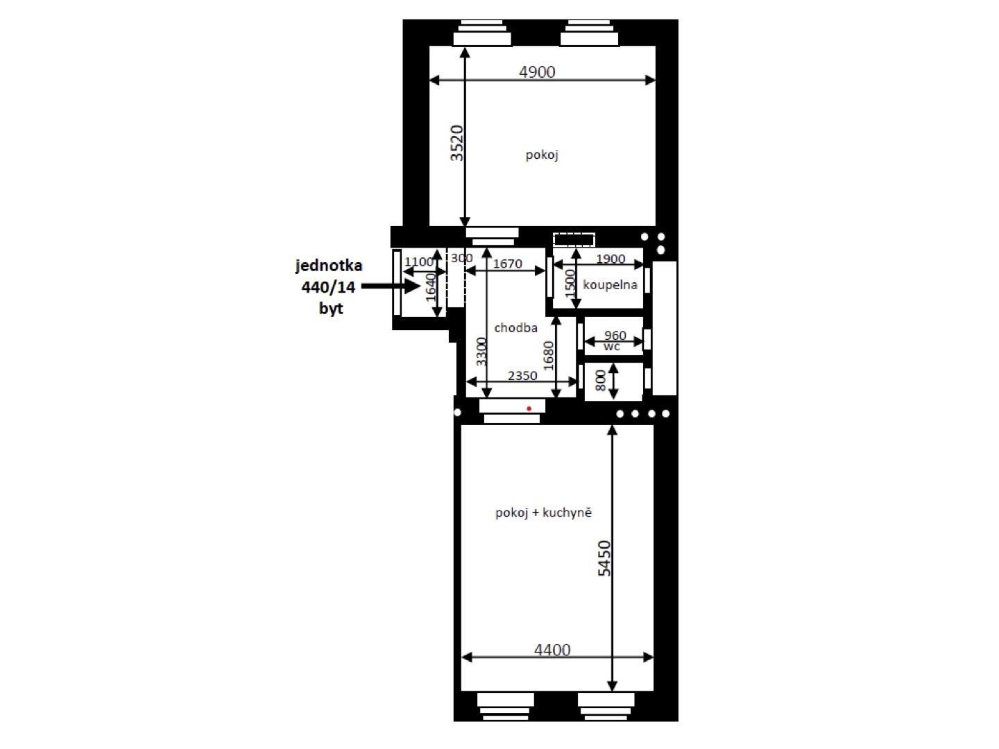
Byt o podlahové ploše 60,2m2 se nachází v 3NP a disponuje obývacím pokojem a kuchyní (24m2), dětským pokojem (17m2), předsíní s chodbou (8,9m2), komorou (0,8m2), koupelnou (2,8m2) a oddělenou toaletou (0,8m2).

V lokalitě se nachází veškerá občanská vybavenost, včetně restaurací, kaváren a parků ( Havlíčkovy sady - 350m, park Folimanka 900m).

Doprava: U domu se nachází tramvajová zastávka – Otakarovo náměstí nebo náměstí bratří Synků a v docházkové vzdálenosti 7 minut vlakové nádraží Vršovice.

V současné době je byt obýván dlouholetým nájemníkem, kterému ke konci dubna 2024 končí nájemní smlouva a bude se stěhovat. Z toho důvodu bude byt od května 2024 volný.

Součástí naší nabídky je kompletní servis, tedy právní služby a zajištění všech potřebných dokumentů, pomoc se zajištěním financování, pojištění nemovitosti i domácnosti, přepisy energií. Bližší informace Vám rád sdělím na osobní prohlídce tohoto bytu. Neváhejte mě kontaktovat. Pro komunikaci uvádějte evidenční číslo zakázky N102421.

Lokalita

Obec

Ulice

Ctiradova

Informace o nemovitosti

Stav

Volný

Typ smlouvy

Prodej

Typ nemovitosti

Byt

Další informace

Typ

2+kk

Obytná plocha

60 m2

Stav objektu

Dobrý

Stavba

Cihlová

Vlastnictví

Osobní

Energetická náročnost budovy

G - Mimořádně nehospodárná

Navigovat k nemovitosti Navigovat k nemovitosti

Máte zájem o tuto nemovitost?

Kontaktujte mě a domluvme se na prohlídce

Dejte nám vědět, s čím vám můžeme pomoct

Osobně s vámi projdeme každý detail

Preferovaný den prohlídky

Preferovaný čas prohlídky

Nejpozději do 24 hodin se ozveme nazpátek.

O vaše data je u nás postaráno. Přečtěte si naše podmínky pro ochranu os. údajů.

Děkujeme za váš zájem

Vaše informace jsme přijali a brzy se vám ozveme.

Váš požadavek byl úspěšně odeslán

Dejte nám vědět, s čím vám můžeme pomoct

Osobně s vámi projdeme každý detail

Podobné nemovitosti v naší nabídce

Mohlo by vás také zaujmout

Volný
Detail nemovitosti

Prodej bytu 3+1 97 m², Palackého náměstí, Praha-Nové Město

Ulice Palackého náměstí, Praha

13 940 000 Kč
Volný
Detail nemovitosti

Prodej bytu 3+1 97 m², Palackého náměstí, Praha-Nové Město

Ulice Palackého náměstí, Praha

13 490 000 Kč
Prodáno
Detail nemovitosti

Prodej bytu 2+kk 42 m², Praha

Ulice Praha

6 490 000 Kč
Prodáno
Detail nemovitosti

Prodej bytu 1+kk 18 m², Praha

Ulice Praha

3 772 000 Kč
Prodáno
Detail nemovitosti

Prodej bytu 1+1 91 m², Na mokřině, Praha-Žižkov

Ulice Na mokřině, Praha

7 800 000 Kč
Volný
Detail nemovitosti

Prodej bytu 2+kk 48 m², Velehradská, Praha-Vinohrady

Ulice Velehradská, Praha

7 990 000 Kč
Volný
Detail nemovitosti

Prodej bytu 1+1 36 m², U Kublova, Praha-Podolí

Ulice U Kublova, Praha

5 600 000 Kč
Prodáno
Detail nemovitosti

Prodej bytu 1+1 87 m², Na mokřině, Praha-Žižkov

Ulice Na mokřině, Praha

7 800 000 Kč
Prodáno
Detail nemovitosti

Prodej bytu 1+1 43 m², Praha

Ulice Praha

6 577 093 Kč
Volný
Detail nemovitosti
Prodáno
Detail nemovitosti

Prodej bytu 1+kk 43 m², Praha

Ulice Praha

5 737 500 Kč
Prodáno
Detail nemovitosti

Prodej bytu 1+kk 25 m², Praha

Ulice Praha

3 909 300 Kč
Prodáno
Detail nemovitosti
Volný
Detail nemovitosti

Prodej bytu 2+kk 43 m², Velehradská, Praha-Vinohrady

Ulice Velehradská, Praha

9 297 000 Kč
Volný
Detail nemovitosti

Prodej bytu 1+kk 33 m², Velehradská, Praha-Vinohrady

Ulice Velehradská, Praha

6 848 000 Kč
Volný
Detail nemovitosti
Prodáno
Detail nemovitosti
Prodáno
Detail nemovitosti

Prodej bytu 2+kk 87 m², Na mokřině, Praha-Žižkov

Ulice Na mokřině, Praha

7 800 000 Kč
Volný
Detail nemovitosti

Prodej bytu 1+kk 39 m², U Kublova, Praha-Podolí

Ulice U Kublova, Praha

5 900 000 Kč
Volný
Detail nemovitosti

Prodej bytu 1+1 43 m², Palackého náměstí, Praha-Nové Město

Ulice Palackého náměstí, Praha

8 600 000 Kč