Zpět Zpět na výpis nemovitostí

Prodej bytu 4+kk 90 m², Horovo náměstí, Praha-Libeň

Horovo náměstí, Praha Zobrazit na mapě Zobrazit na mapě

Stav

Volný

Typ

4+kk

Obytná plocha

90 m2

Stav objektu

Velmi dobrý

Stavba

Cihlová

Vlastnictví

Osobní

9 900 000 Kč

Pohlídejte si cenu této nemovitosti Pohlídejte si cenu této nemovitosti

Sledovat dostupnost

Upozornění

Pohlídejte si změny u této nemovitosti

Dáme vám vědět, ať už se změní cena nebo stav nemovitosti.

Upozornění

O vaše data je u nás postaráno. Přečtěte si naše podmínky pro ochranu os. údajů.

Kalkulačka financování Kalkulačka financování

Spočítejte si, na kolik vás vyjde hypotéka

Spočítejte si, na kolik vás vyjde hypotéka

Spočítejte si, na kolik vás vyjde hypotéka

Kalkulačka je skvělý start pro vaše finanční plánování a pevný základ pro podrobnější diskusi s našimi finančními poradci.

Více o této nemovitosti

Hledáte krásný prostorný byt kousek od centra Prahy? Právě jste ho našli!

V exkluzivním zastoupení majitele vám nabízíme ke koupi krásný a
prostorný byt, vhodný jak pro komfortní plnohodnotné rodinné bydlení,
tak jako velice zajímavá investice nebo zajištění bydlení pro své děti do
budoucna.

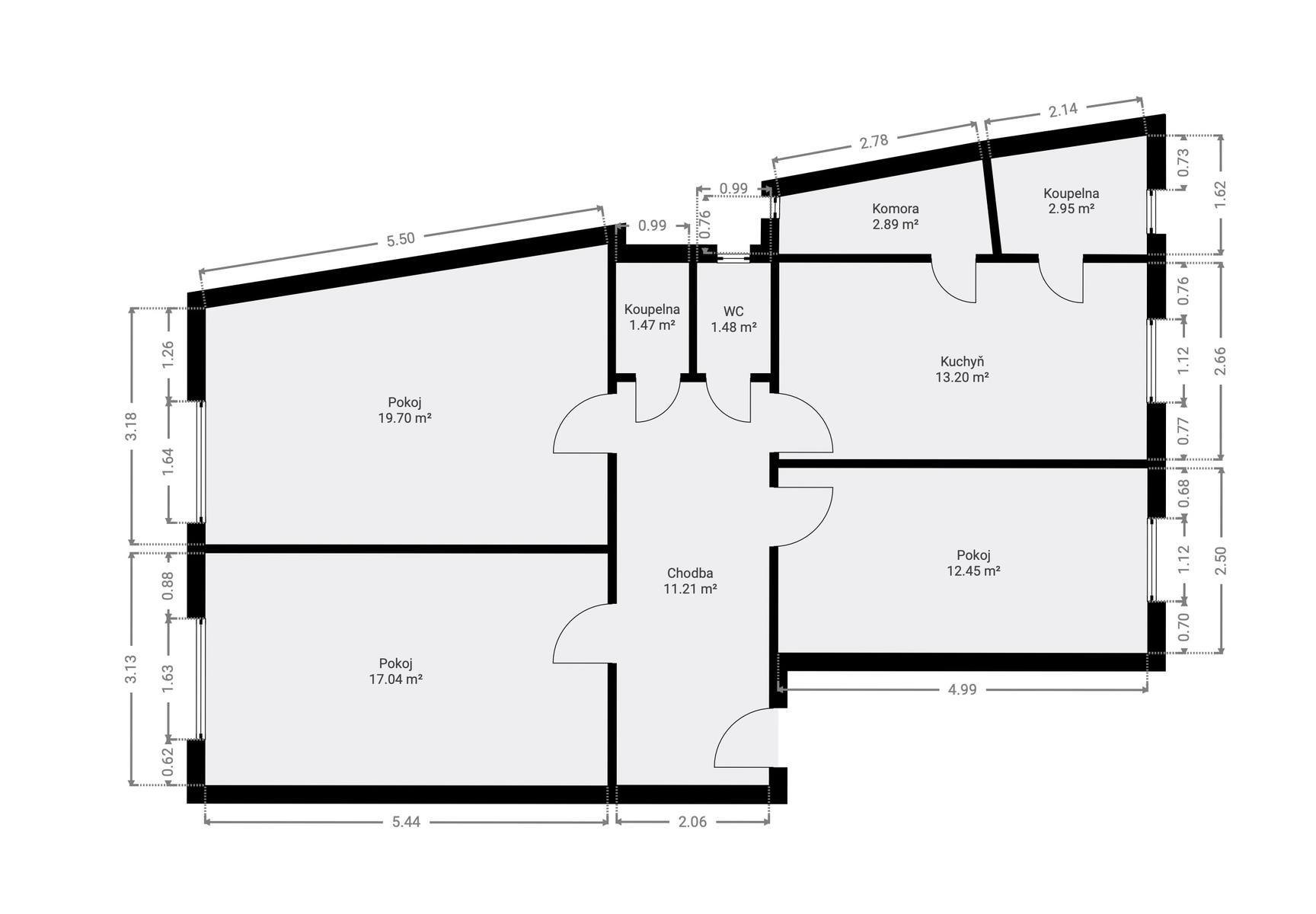
Byt má ideální rodinnou dispozici 4+kk s podlahovou plochou 89,7 m2. Skládá se ze třech plnohodnotných pokojů s plochami 19,7 m2, 17 m2 a 12,5 m2, prostorné kuchyně (13,2 m2) kam se ideálně vejde jídelna pro celou rodinu, předsíně, resp. chodby (11,2 m2), dvou koupelen, jedna s vanou (2,95 m2) a druhá se sprchovým koutem (1,5 m2), samostatné toalety (1,5 m2) a prostornou komorou (2,9 m2), „špajskou“, přístupnou přímo z kuchyně.

V pokojích jsou položeny dřevěné podlahy, v předsíni, koupelnách, toaletě a komoře je položena
dlažba.
Vytápění je etážové bytové, zajištěné plynovým kotlem a radiátory ve všech místnostech. Byt se prodává bez vybavení, v inzerci jsou použity i fotografie s virtuálními vizualizacemi pro účel představy o možnostech jeho zařízení.

Dům z roku 1920 je velice dobře udržovaný a všechny jednotky v domě byly v letech 2014 až 2015 rekonstruovány. Rekonstrukce zahrnovala nové rozvody elektřiny a vytápění, včetně osazení nových zdrojů vytápění. Byla osazena nová plastová okna, dveře a byly položeny nové podlahové krytiny.

Renovace uliční i dvorní fasády domu proběhla v letech 2022 až 2023. Byt se nachází na 5. nadzemním podlaží, tj. na 4. patře, v bytovém domě bez výtahu.

Díky své poloze je z bytu nádherný výhled po okolí. Bytový dům se nachází v blízkosti křižovatky ulic Zenklova a Povltavská a v okolí se nachází veškerá občanská vybavenost. Pár minut pěšky od domu se nachází Libeňský zámeček, kostel sv. Vojtěcha, Psí louka Libeň, Thomayerovy sady, mnoho sportovišť, školy atd..

Dopravní dostupnost je zajištěna zejména tramvajemi nebo autobusovou dopravou MHD. Stanice metra "B" Palmovka se nachází při ulici Zenklova ve vzdálenosti cca 900 metrů od domu.

Neváhejte a domluvte si osobní prohlídku bytu. Pro komunikaci uvadejte evidencni cislo zakazky N117106.

Lokalita

Obec

Ulice

Horovo náměstí

Informace o nemovitosti

Stav

Volný

Typ smlouvy

Prodej

Typ nemovitosti

Byt

Další informace

Typ

4+kk

Obytná plocha

90 m2

Stav objektu

Velmi dobrý

Stavba

Cihlová

Vlastnictví

Osobní

Energetická náročnost budovy

G - Mimořádně nehospodárná

Navigovat k nemovitosti Navigovat k nemovitosti

Máte zájem o tuto nemovitost?

Kontaktujte mě a domluvme se na prohlídce

Dejte nám vědět, s čím vám můžeme pomoct

Osobně s vámi projdeme každý detail

Preferovaný den prohlídky

Preferovaný čas prohlídky

Nejpozději do 24 hodin se ozveme nazpátek.

O vaše data je u nás postaráno. Přečtěte si naše podmínky pro ochranu os. údajů.

Děkujeme za váš zájem

Vaše informace jsme přijali a brzy se vám ozveme.

Váš požadavek byl úspěšně odeslán

Dejte nám vědět, s čím vám můžeme pomoct

Osobně s vámi projdeme každý detail

Podobné nemovitosti v naší nabídce

Mohlo by vás také zaujmout

Prodáno
Detail nemovitosti

Prodej bytu 3+1 97 m², Palackého náměstí, Praha-Nové Město

Ulice Palackého náměstí, Praha

13 940 000 Kč
Prodáno
Detail nemovitosti

Prodej bytu 3+1 97 m², Palackého náměstí, Praha-Nové Město

Ulice Palackého náměstí, Praha

13 490 000 Kč
Prodáno
Detail nemovitosti

Prodej bytu 2+kk 42 m², Praha

Ulice Praha

6 490 000 Kč
Realizováno
Detail nemovitosti
Realizováno
Detail nemovitosti

Prodej bytu 1+1 91 m², Na mokřině, Praha-Žižkov

Ulice Na mokřině, Praha

7 800 000 Kč
Prodáno
Detail nemovitosti

Prodej bytu 2+kk 48 m², Velehradská, Praha-Vinohrady

Ulice Velehradská, Praha

7 990 000 Kč
Prodáno
Detail nemovitosti

Prodej bytu 1+1 36 m², U Kublova, Praha-Podolí

Ulice U Kublova, Praha

5 600 000 Kč
Prodáno
Detail nemovitosti

Prodej bytu 1+1 87 m², Na mokřině, Praha-Žižkov

Ulice Na mokřině, Praha

7 800 000 Kč
Prodáno
Detail nemovitosti

Prodej bytu 1+1 43 m², Praha

Ulice Praha

6 577 093 Kč
Prodáno
Detail nemovitosti
Prodáno
Detail nemovitosti

Prodej bytu 1+kk 43 m², Praha

Ulice Praha

5 737 500 Kč
Prodáno
Detail nemovitosti

Prodej bytu 1+kk 25 m², Praha

Ulice Praha

3 909 300 Kč
Realizováno
Detail nemovitosti
Volný
Detail nemovitosti

Prodej bytu 2+kk 43 m², Velehradská, Praha-Vinohrady

Ulice Velehradská, Praha

9 297 000 Kč
Realizováno
Detail nemovitosti

Prodej bytu 1+kk 33 m², Velehradská, Praha-Vinohrady

Ulice Velehradská, Praha

6 848 000 Kč
Prodáno
Detail nemovitosti
Prodáno
Detail nemovitosti
Realizováno
Detail nemovitosti

Prodej bytu 2+kk 87 m², Na mokřině, Praha-Žižkov

Ulice Na mokřině, Praha

7 800 000 Kč
Realizováno
Detail nemovitosti

Prodej bytu 1+kk 39 m², U Kublova, Praha-Podolí

Ulice U Kublova, Praha

5 900 000 Kč
Prodáno
Detail nemovitosti

Prodej bytu 1+1 43 m², Palackého náměstí, Praha-Nové Město

Ulice Palackého náměstí, Praha

8 600 000 Kč