Zpět Zpět na výpis nemovitostí

Prodej komerčních prostor obchodní prostory 25 m², Husitská, Praha-Žižkov

Husitská, Praha Zobrazit na mapě Zobrazit na mapě

Stav

Prodáno

Typ

Obchodní prostory

Obytná plocha

25 m2

Stav objektu

Před rekonstrukcí

Stavba

Cihlová

Typ domu

Přízemní

2 460 000 Kč

Pohlídejte si cenu této nemovitosti Pohlídejte si cenu této nemovitosti

reo_watchdog_modal_header_title

bell

Pohlídejte si změny u této nemovitosti

Dáme vám vědět, ať už se změní cena nebo stav nemovitosti.

bell

O vaše data je u nás postaráno. Přečtěte si naše podmínky pro ochranu os. údajů.

Kalkulačka financování Kalkulačka financování

Spočítejte si, na kolik vás vyjde hypotéka

Spočítejte si, na kolik vás vyjde hypotéka

Spočítejte si, na kolik vás vyjde hypotéka

Kalkulačka je skvělý start pro vaše finanční plánování a pevný základ pro podrobnější diskusi s našimi finančními poradci.

Více o této nemovitosti

Vážení klienti, ve výhradním zastoupení majitele, si vám dovolujeme nabídnout jedinečnou příležitost ke koupi, a to ateliér v projektu Husitská 60 v samotném srdci Žižkova.

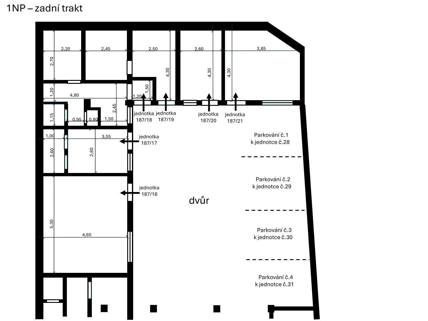
Ateliér se nachází v 1. nadzemním podlaží se vstupem z vnitrobloku, díky jeho pravidelnému tvaru je skvěle využitelný a jeho celková podlahová plocha je 24,60 m2 a je určen k rekonstrukci. V přiložených půdorysech je tento ateliér označený jako 187/16.

Do ateliéru je přiveden nový odpad a rozvod vody.

V lokalitě se nachází kompletní občanská vybavenost a služby, včetně mateřských škol, základních škol a prestižní Vysoké školy Ekonomické v Praze.

Díky strategické poloze je lokalita dobře dostupná pomocí veřejné dopravy a nabízí snadný přístup do centra města i do ostatních částí Prahy.
V docházkové vzdálenosti je metro, vlakové i autobusové nádraží.

V okolí najdete krásné parky a moderní sportoviště, které poskytují prostor pro volnočasové aktivity. Součástí naší nabídky je kompletní servis, tedy právní služby a zajištění všech potřebných dokumentů, pomoc se zajištěním financování, pojištění nemovitosti i domácnosti, přepisy energií.

Bližší informace Vám rád sdělím na osobní prohlídce tohoto ateliéru. Pro komunikaci uvádějte evidenční číslo zakázky N106311.

Lokalita

Obec

Ulice

Husitská

Informace o nemovitosti

Stav

Prodáno

Typ smlouvy

Prodej

Typ nemovitosti

Komerční

Další informace

Typ

Obchodní prostory

Obytná plocha

25 m2

Stav objektu

Před rekonstrukcí

Stavba

Cihlová

Typ domu

Přízemní

Navigovat k nemovitosti Navigovat k nemovitosti

Máte zájem o tuto nemovitost?

Kontaktujte mě a domluvme se na prohlídce

Dejte nám vědět, s čím vám můžeme pomoct

Osobně s vámi projdeme každý detail

Preferovaný den prohlídky

Preferovaný čas prohlídky

Nejpozději do 24 hodin se ozveme nazpátek.

O vaše data je u nás postaráno. Přečtěte si naše podmínky pro ochranu os. údajů.

Děkujeme za váš zájem

Vaše informace jsme přijali a brzy se vám ozveme.

Váš požadavek byl úspěšně odeslán

Dejte nám vědět, s čím vám můžeme pomoct

Osobně s vámi projdeme každý detail

Podobné nemovitosti v naší nabídce

Mohlo by vás také zaujmout